Ícone para exibir Menu
Ícone para fechar o menu
Home
A Empresa
Obras Realizadas
Projetos
Contato
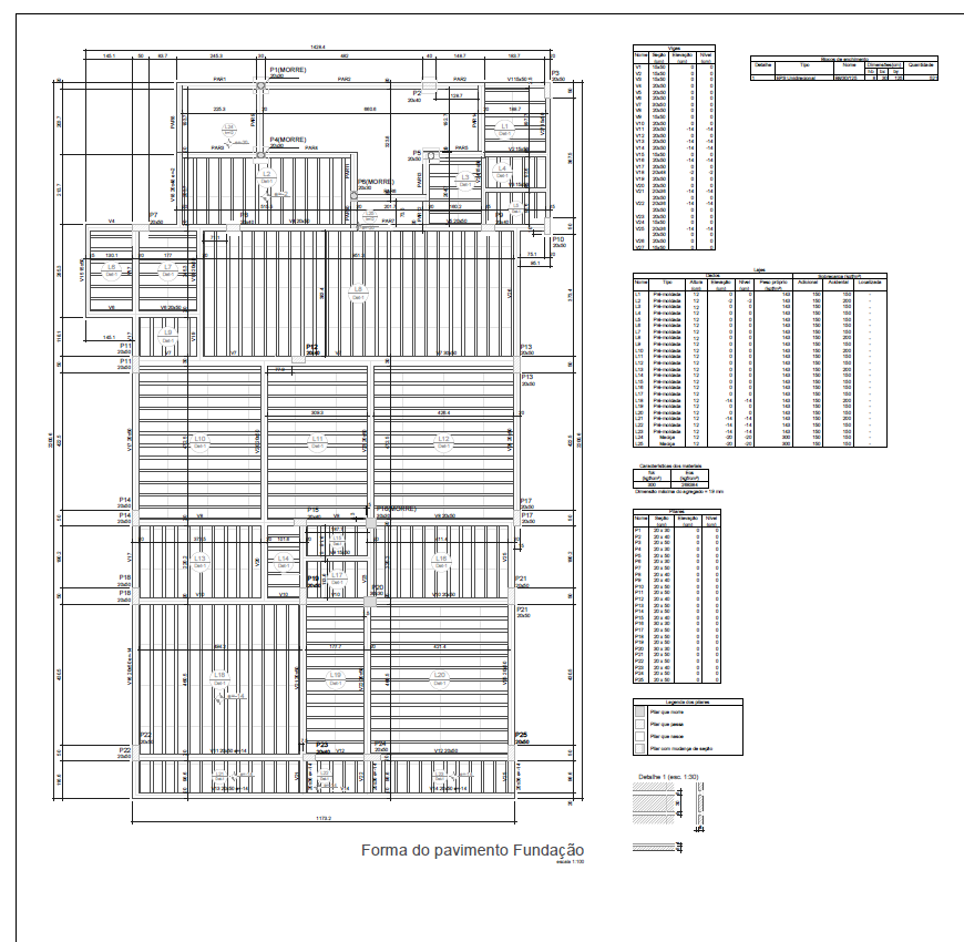
Executamos projeto e dimensionamento de estruturas de concreto armado e estruturas metálicas.